New York Residential Tower (U)

New York Residential Tower (U)

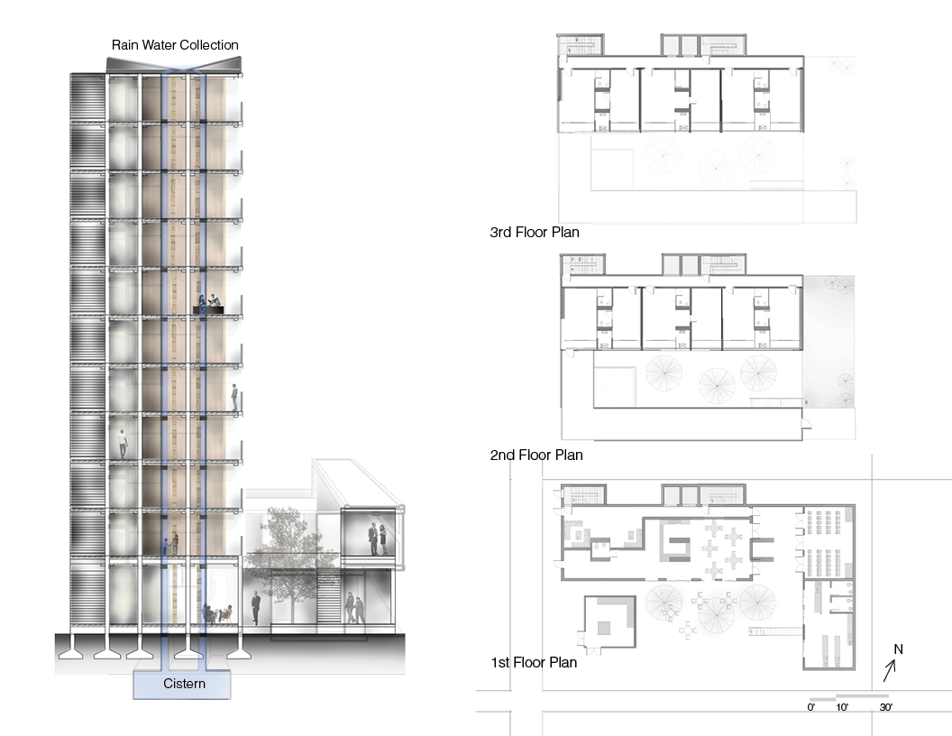
This is a didactic building that offers space for the public to observe and learn about the performance of a sustainble building. It includes an exhibition space to display new technologies in sustainability. Prefabricated construction allows for a reduced ecological footprint and on site construction time. A vegetable garden and a green roof are benefits to the residents and also the public to learn techniques of urban farming. Each residential unit includes operable solar shades to reduce energy costs and make the inside environment comfortable. The central core acts as the ducting for utilities and services.

Category

Undergraduate